Beds: 3-4
Baths: 3
Sq.Ft.: 2300
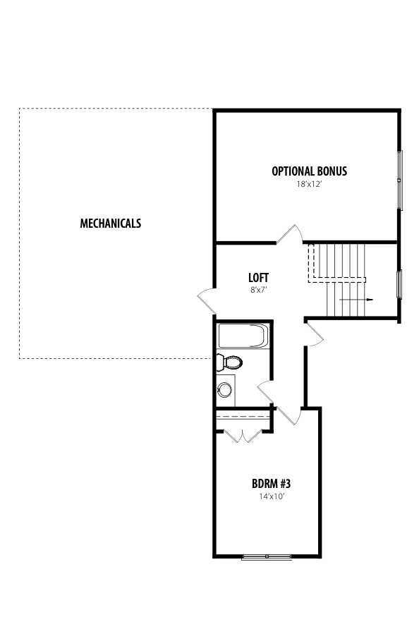
The Mitchell floorplan blends sophisticated architectural details with functional living, providing a perfect balance of luxury and practicality in the heart of Clayton. The spacious 2,300-square-foot layout features a large upstairs bonus room, a two-car garage, and a private loft, giving you plenty of space to spread out. Modern conveniences abound, including a formal dining room and a customizable main suite with multiple bath options to suit your lifestyle. With its classic farmhouse elevation and approachable design, the Mitchell offers a refined yet comfortable move-in ready experience.
Optional Elevations


